
HD Tipi Avrupa Vinç Elektrikli Tek Kirişli Gezer Vinç
Avrupa Tek Kirişli Gezer Köprülü Vinç, ileri teknoloji ve güzel tasarım ile FEM ve DIN standartlarına uygun olarak tasarlanmış ve üretilmiştir. Atölye ve depo malzeme taşıma, büyük parça hassas montaj ve diğer yerler için uygun, Avrupa standart elektrikli vinç kullanımını destekleyen, genel tip ve süspansiyon tipi ayrılmıştır.
HD Tipi Avrupa Vinç Elektrikli Tek Kirişli Gezer Vinç
Kısa açıklama:
Avrupa Tek Kirişli Gezer Köprülü Vinç, ileri teknoloji ve güzel tasarım ile FEM ve DIN standartlarına uygun olarak tasarlanmış ve üretilmiştir. Atölye ve depo malzeme taşıma, büyük parça hassas montaj ve diğer yerler için uygun, Avrupa standart elektrikli vinç kullanımını destekleyen, genel tip ve süspansiyon tipi ayrılmıştır.

Makine imalatı, metalurji, petrol, petrifaction, liman, demiryolu, sivil havacılık, gıda, kağıt yapımı, inşaat, elektronik endüstrisi atölye, depo ve diğer malzeme taşıma durumlarında yaygın olarak kullanılabilir. hassas konumlandırmaya ihtiyaç duyan malzeme elleçlemesine uygulanır, büyük parçalar, montaj durumunun hassas olmasını sağlar.

Detaylı Görüntüler:

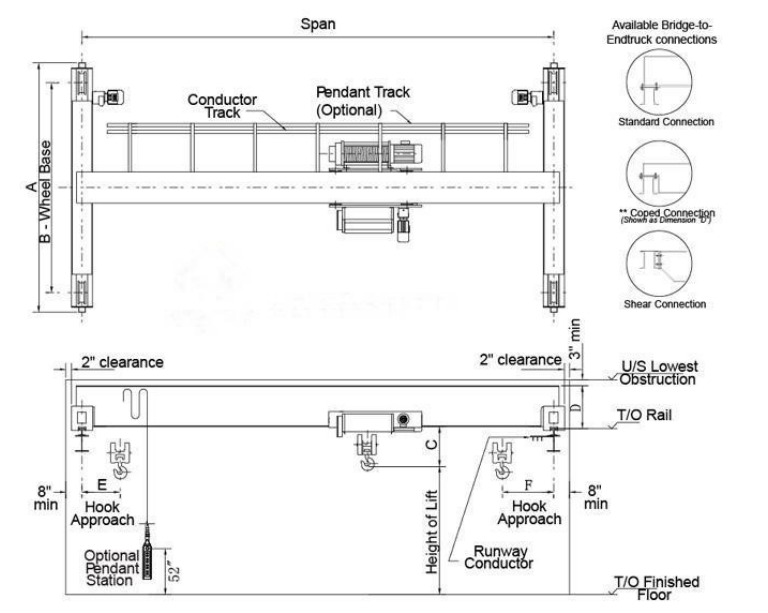
Çizim Çizimi:

Teknik parametreler:
karış | m | 7.5 | 10.5 | 13.5 | 16.5 | 19.5 | 22.5 | 25,5 |
Kapasite | t | 1 ~ 12.5t | ||||||
Toplam ağırlık | kilogram | 1781 ~ 12086 | ||||||
Arabası ağırlığı | kilogram | 405 ~ 740 | ||||||
Maks. Tekerlek yükü | kn | 13.5 ~ 90.94 | ||||||
Seyahat demiryolu | P24 ~ P43 | |||||||
Kaldırma hızı | m / dak | 0,8 / 5 | 0,8 / 5 | 0,8 / 5 | 0,8 / 5 | 0,8 / 5 | 0,8 / 5 | 0,8 / 5 |
Ağırlık kaldırmak | m | ≥ 6 | ≥ 6 | ≥ 6 | ≥ 6 | ≥ 6 | ≥ 6 | ≥ 6 |
Toplam motor gücü | kw | 4.31 | 4.31 | 4.31 | 4.31 | 4.67 | 4.67 | 4.67 |
Vinç hızı | m / dak | 3-30 | 3-30 | 3-30 | 3-30 | 3-30 | 3-30 | 3-30 |
Arabası hız | m / dak | 2-20 | 2-20 | 2-20 | 2-20 | 2-20 | 2-20 | 2-20 |
Çalışma görevi | M5 / A5 | |||||||


English
বাংলা
dansk
Français
Indonesia
Български
українська
Malti
Gaeilgenah Éireann
íslenska
magyar
Cymraeg





